Бойлер Raymer DHWP 150 л непрямого нагріву гарячого водопостачання (ГВП) розроблений спеціально для теплових насосів повітря-вода
СКАЧАТЬ РАЗМЕРЫ БАКА RAYMER DHWP 150 л

Бойлер непрямого нагріву гарячого водопостачання Raymer DHWP 150 розроблений для забезпечення стабільного постачання гарячої води для побутових потреб від систем теплових насосів. Корпуси баків виготовлені з нержавіючої сталі марки SUS 304 — 1,2 мм, а вбудований змійовик із нержавіючої сталі марки SUS 316
| Бак ковенного нагріву Raymer DHWP 150 л | |
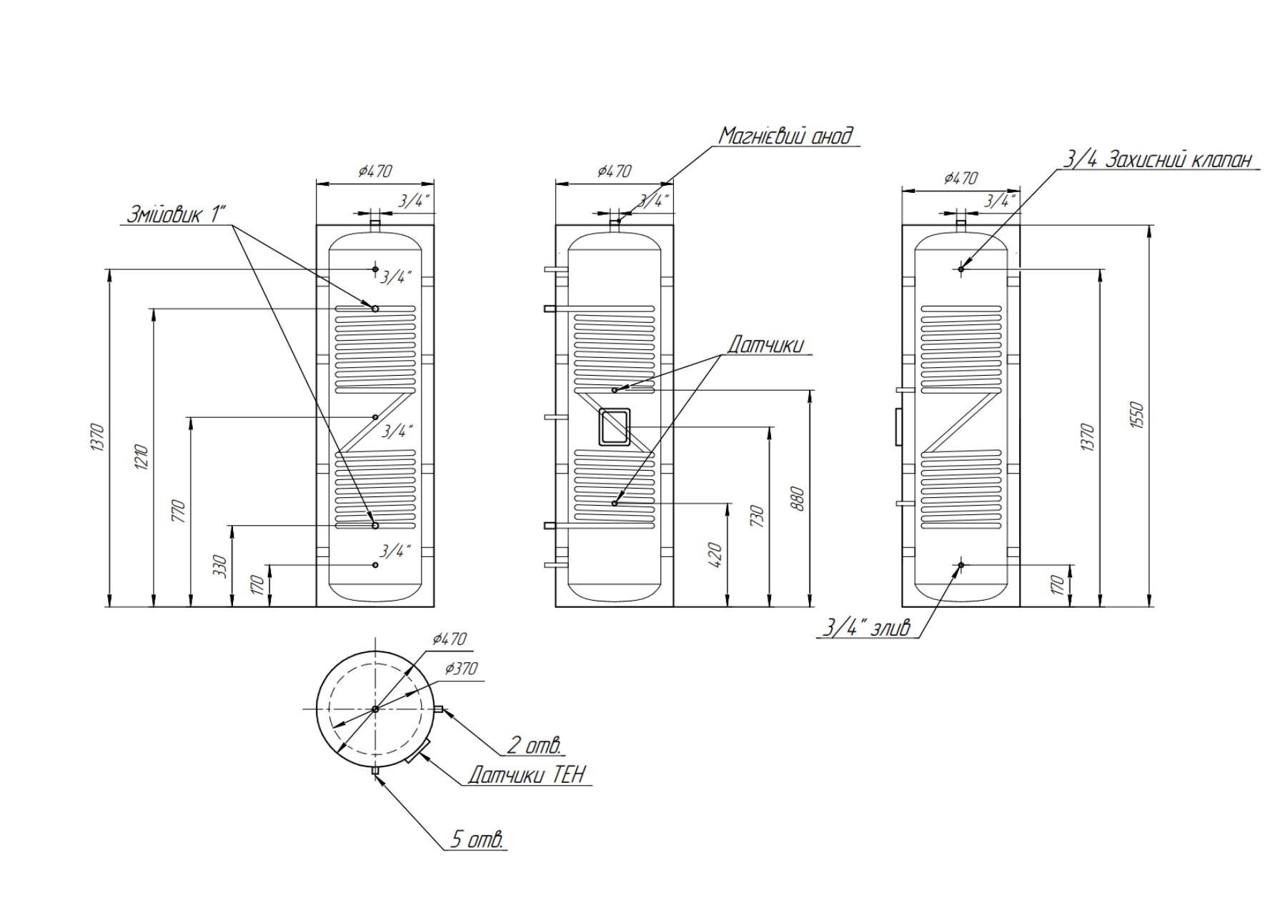
| Внутрішній діаметр бака: | 370 мм |
| Зовнішній діаметр бака: | 470 мм |
| Матеріал внутрішнього резервуару: | SUS 304 — 1,2 мм |
| Матеріал зовнішнього резервуару: | пофарбована оцинкована сталь — 0,55 мм |
| Ізоляційний шар: | поліуретан високої щільності 55 мм |
| Довжина змійовика |
15 м |
Характеристики бойлера непрямого нагріву RAYMER DHWP 150л:
- Змійовик, що ідеально підходить для систем теплового насоса повітря-вода: 15 м.п. довжина або 2,25 м² площа.
- Товщина стінки: 1,2 мм.
- Висота: 1500 мм.
- Діаметр з кріпленнями та виступами — 510 мм.
- Зовнішній діаметр бака: 470 мм.
- Внутрішній діаметр бака: 370 мм.
Переваги бака непрямого нагріву Raymer DHWP 150
-
Міцність та довговічність: Високоякісні конструкційні матеріали забезпечують довговічність бака, продовжуючи термін його служби та знижуючи вимоги до обслуговування.
-
Ефективний теплообмінний змійовик: 15-метровий змійовик усередині бойлера сприяє ефективній теплопередачі, забезпечуючи швидке нагрівання та постійну подачу гарячої води. Квадратура серпантину 2,25 квадратних метра! Що ідеально для теплових насосів повітря вода невеликої потужності.
-
Універсальні можливості встановлення: Конструкція у вигляді стійки дозволяє встановлювати баки вертикально., забезпечуючи гнучкість у розміщенні та адаптацію до різних конфігурацій водопроводу.
-
Великий обсяг: Бак ємністю 150 літрів забезпечує достатній запас гарячої води, задовольняючи потреби домогосподарств та невеликих комерційних підприємств.
-
Ізоляція для збереження тепла: Бойлер оснащений ефективною ізоляцією для мінімізації тепловтрат і підтримки температури гарячої води, що зберігається.
-
Корозійно-стійкий матеріал: Бак виготовлений з нержавіючої, харчової сталі марки 304 для забезпечення міцності та довговічності.
-
Вбудований Тен на 3 квт із регульованим термостатом йде в комплекті.
-
Група безпеки бака в комплекті.
-
Ніжки для підлогового монтажу йдуть у комплекті
Важлива інформація! У непрямому нагріванні Raymer DHWP встановлюється інтегрований електричний нагрівальний елемент (Після), який призначений виключно для тестового запуску системи.
📌ГАРАНТИЧЕЙНА НЕ 1 місяць з моменту покупки.
Що — Тепла котушка доходу, що забезпечує ефективну роботу резервуара в системі з тепловим насосом, котел або інші джерела тепла.
⚠ Увага! Використання вбудованого нагрівального елемента як основного джерела опалення не забезпечується виробником і може вплинути на термін служби.
Слід зазначити, що баки непрямого нагріву є надійним і ефективним рішенням для задоволення ваших потреб у гарячій воді. Бойлер непрямого нагріву об'ємом 150 літрів з 15-метровим змійовиком та площею поверхні 2,25 м2 має оптимальну ємність і ключові характеристики., що забезпечують постійне постачання гарячою водою. Правильне встановлення, регулярне обслуговування та догляд необхідні для максимального збільшення терміну служби та продуктивності цих баків.
УВАГА! Необхідна щорічна заміна магнієвого анода баку, інакше не діє гарантія на баки ГВП Raymer.
Слід зазначити, що магнієвий анод є найважливішим компонентом для захисту вашого бака від корозії. Жертвуючи собою, анод запобігає корозії бака, продовжуючи термін його служби та позбавляючи вас від дорогого ремонту. Простота встановлення та тривалий захист, яку забезпечують магнієві аноди, роблять їх економічно ефективним рішенням для підтримки ефективності роботи вашого бака..
ГЕОМЕТРІЯ БАКА:

Характеристики
| Змієвик | 15 м.п. або 2,25 м². |
|---|---|
| Товщина стінки |
1,2 мм |
| Висота |
1550 мм |
| Зовнішній діаметр бака |
470 мм |
| Внутрішній діаметр бака | 370 мм |
| Марка нержавіючої сталі бака | 304 |






